0
0
冷卻泵浦
TPAK15
TPAK 系列冷卻液循環泵,是專門設計用於冷卻液、潤滑劑等泵送噴灑及循環。 應用於各式車、銑、鉋、磨、鋸等工具機上使用。
產品規格:(冷卻泵) 
(詢價時請在備註欄寫上電壓--謝謝)
  型式  相數
 (Ø)
 頻率
 (Hz)
    輸出瓦數
   (W)
   電壓
   (V)
   輸出安培數
   (A)
 TPAK15       3    50    1300    220 / 380   4.8 / 2.8
   60     2000    220 / 380   5.4 / 3.1

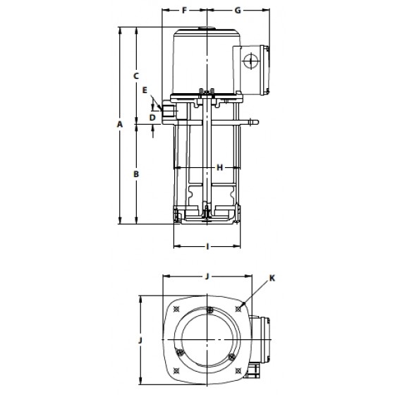
外形尺寸(mm): 參考圖2
   型式     外型尺寸(mm)
    A   B     C  D        E   F   G    H      I    J         K
TPAK15-25  573.5  250  323.5  40 Rp 1½” 122 124  Ø180  Ø180  200  4xØ9 PCD210
產品詳細介紹

產品用途

TPAK 系列冷卻液循環泵,是專門設計用於冷卻液、潤滑劑等泵送噴灑及循環。 應用於各式車、銑、鉋、磨、鋸等工具機上使用。 適用液體 例如水,冷卻劑,輕油和其他乾淨、低粘度、無燃性、無爆炸性液體。

泵浦構造:

泵浦為單加壓室、單葉輪的直立式浸水離心泵浦,泵浦與馬達同軸設計,葉輪安裝在馬達延長之軸端上。

馬達

轉速: 2900 / 3500 rpm
頻率: 50 / 60 Hz
電壓範圍: 220V/380V
防護等級: IP54
絕緣等級: F.

使用條件

環境溫度: Max. +40°C
液體溫度: +0°C ~ +90°C 
工作壓力: Max. 10 kg/cm²