0
0
冷卻泵浦
TPAK8
TPAK 系列冷卻液循環泵,是專門設計用於冷卻液、潤滑劑等泵送噴灑及循環。 應用於各式車、銑、鉋、磨、鋸等工具機上使用。
產品規格:(冷卻泵) 
(詢價時請在備註欄寫上電壓--謝謝)
  型式  相數
 (Ø)
 頻率
 (Hz)
 輸出瓦數
 (W)
   電壓
   (V)
   輸出安培數
   (A)
 TPAK8     3   50    930  200-255 / 380-440  3.1-4.4 / 1.9-2.6
  60    1320   200-255 / 380-480  4.0 / 2.4

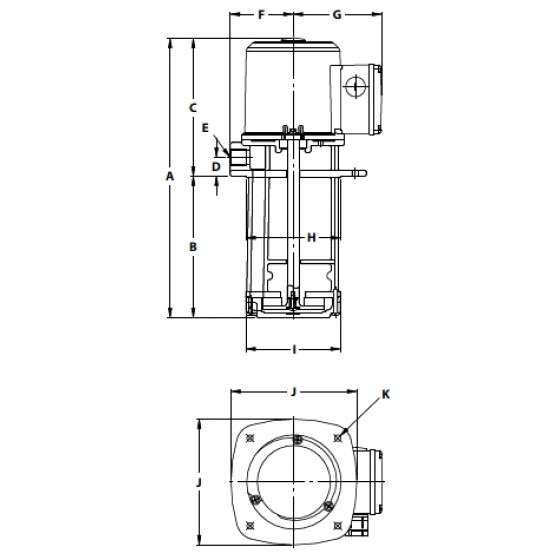
外形尺寸(mm): 參考圖2
  型式    外型尺寸(mm)
   A    B    C  D       E  F    G      H       I    J         K
 TPAK8-18  457  180  277  29  Rp 1”  95  111  Ø150  Ø150  190  4xØ9 PCD185
 TPAK8-25  527  250  277  29  Rp 1”  95  111  Ø150  Ø150  190  4xØ9 PCD185
產品詳細介紹

產品用途

TPAK 系列冷卻液循環泵,是專門設計用於冷卻液、潤滑劑等泵送噴灑及循環。 應用於各式車、銑、鉋、磨、鋸等工具機上使用。 適用液體 例如水,冷卻劑,輕油和其他乾淨、低粘度、無燃性、無爆炸性液體。

泵浦構造:

泵浦為單加壓室、單葉輪的直立式浸水離心泵浦,泵浦與馬達同軸設計,葉輪安裝在馬達延長之軸端上。

馬達

轉速: 2900 / 3500 rpm
頻率: 50 / 60 Hz
電壓範圍: 220V/380V
防護等級: IP54
絕緣等級: F.

使用條件

環境溫度: Max. +40°C
液體溫度: +0°C ~ +90°C 
工作壓力: Max. 10 kg/cm²