0
0
冷卻泵浦
TPAK4
TPAK 系列冷卻液循環泵,是專門設計用於冷卻液、潤滑劑等泵送噴灑及循環。 應用於各式車、銑、鉋、磨、鋸等工具機上使用。
產品規格:(冷卻泵) 
(詢價時請在備註欄寫上電壓--謝謝)
  型式  相數
 (Ø)
 頻率
 (Hz)
 輸出瓦數
 (W)
   電壓
   (V)
   輸出安培數
   (A)
 TPAK4    3   50    440  200-255 / 380-440  1.5-1.9 / 0.9-1.2
  60    620  200-255 / 380-480  2.0 / 1.1

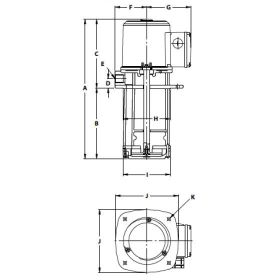
外形尺寸(mm): 參考圖2
  型式    外型尺寸(mm)
   A    B    C  D        E  F    G     H      I     J           K
 TPAK4-15  386  150  236  28  Rp ¾”  85  111  Ø135  Ø135  170  4xØ9 PCD170
 TPAK4-18  416  180  236  28  Rp ¾”  85  111  Ø135  Ø135  170  4xØ9 PCD170
 TPAK4-25  486  250  236  28  Rp ¾”  85  111  Ø135  Ø135  170  4xØ9 PCD170
產品詳細介紹

產品用途

TPAK 系列冷卻液循環泵,是專門設計用於冷卻液、潤滑劑等泵送噴灑及循環。 應用於各式車、銑、鉋、磨、鋸等工具機上使用。 適用液體 例如水,冷卻劑,輕油和其他乾淨、低粘度、無燃性、無爆炸性液體。

泵浦構造:

泵浦為單加壓室、單葉輪的直立式浸水離心泵浦,泵浦與馬達同軸設計,葉輪安裝在馬達延長之軸端上。

馬達

轉速: 2900 / 3500 rpm
頻率: 50 / 60 Hz
電壓範圍: 220V/380V
防護等級: IP54
絕緣等級: F.

使用條件

環境溫度: Max. +40°C
液體溫度: +0°C ~ +90°C 
工作壓力: Max. 10 kg/cm²