0
0
抗菌電子穩壓加壓泵浦
HQ200B
本系列加壓泵浦,適用於一般住家不含雜質之清水
加壓、輸送,一般應用如:
- 公寓、住宅給水
- 自動增壓系統
- 抽水系統
- 飲水系統
- 灑水系統

產品規格:
型式: HQ200B
馬力(KW): 0.18
頻率(HZ): 60
相數(∮)” 1
電壓(V): 110/220
電流(A): 4.0/2.0
入口徑in(mm): 3/4”
出口徑in(mm): 3/4”
啟動壓力(kg/cm2): 1.4
最大揚程(m): 23
最大水量(L/min): 60
重量(kg): 7.5
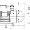
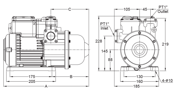
外型尺寸mm(AхBхC):355х153х158(參考圖2)
產品詳細介紹

產品特點

1. 電子穩壓設計:
整合了泵浦、馬達、壓力桶及電子控制器的穩壓供水系統。
2. 水機身採用符合RoHS規範之抗菌工程塑膠,可抑制部分菌類之滋生,提高用水品質。
3. 接液部位採用不生銹材質,確保飲用水衛生。
4. 葉輪採用304不鏽鋼多段離心式設計,強度高、能效佳、運轉時安靜低噪音。
5.HQ200B、HQ400B馬達裝設有溫度過載保護裝置,可防止馬達燒毀。

6. 無水雙重保護:

泵浦內置溫度保護開關,當無水空轉造成水機內水溫高於55°C時,泵浦自動停止運轉;另搭載程式控制無水運轉保護,無水時自動停機。

7. 具延遲6秒緩停機:
此功能可避免用水時因水量太小造成泵浦啟動停止頻繁的問題。

使用條件

環境溫度:Max. +40°C
液體溫度:+4°C~+40°C
相對溼度:Max. 85%(RH)
工作壓力:Max. 8.5 kg/cm²
入口壓力:須小於壓力開關啟動值